Сдам бизнес-центр/офисный центр, 400 м²

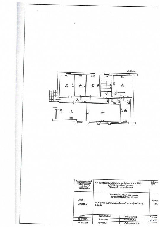
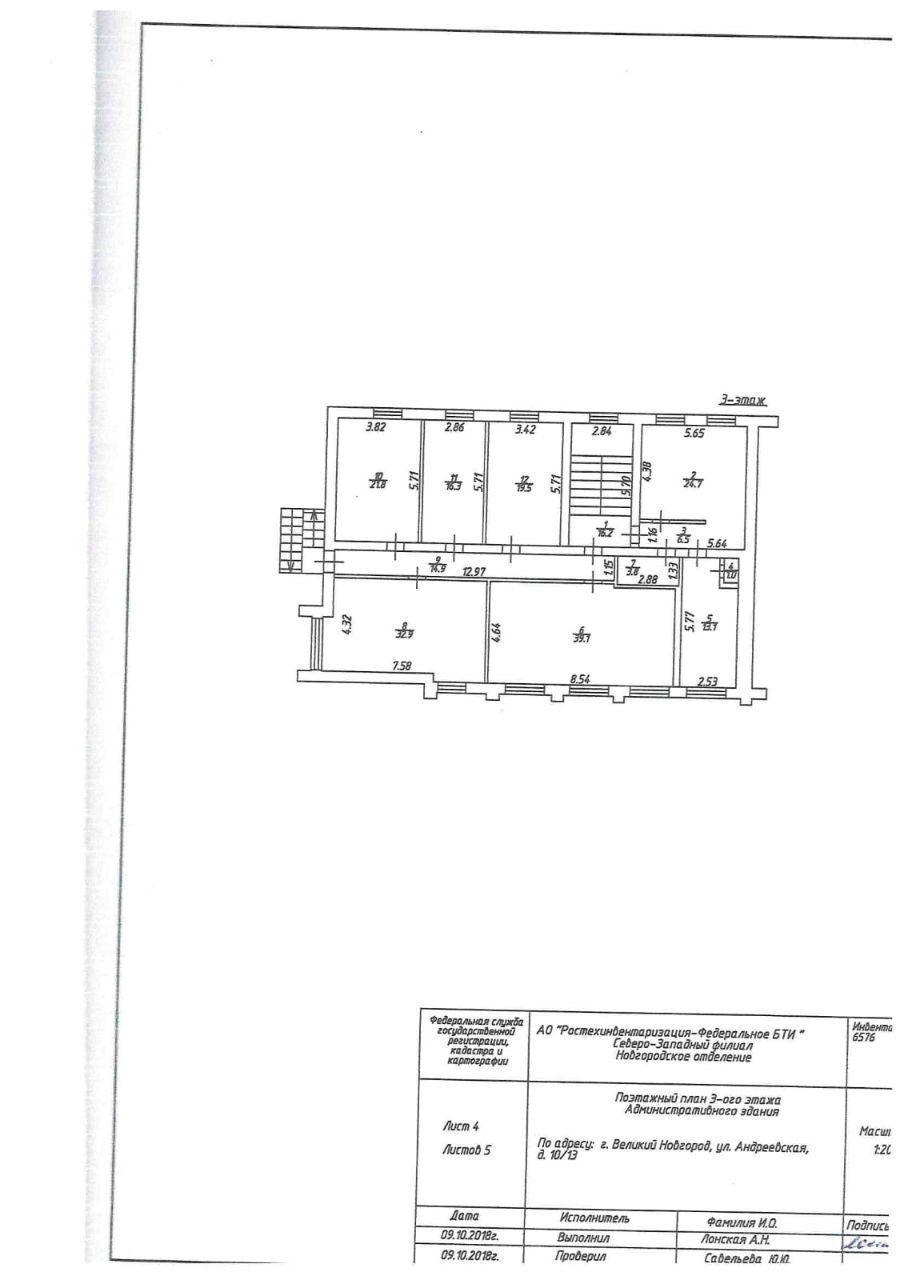
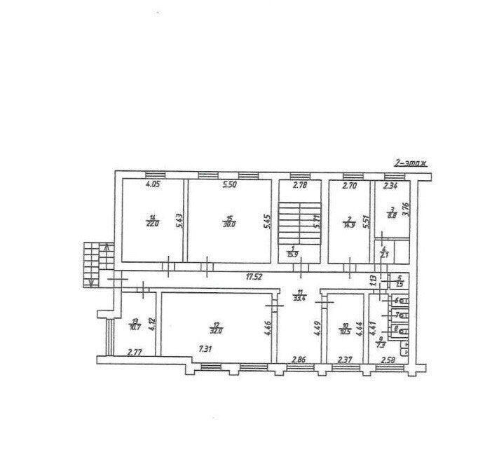
ул Андреевская, д. 10/13

350 000 руб.

?

$ 1 086

€ 979

875 руб./м²


400 м²

2/3 этажей

Код объекта

129854

Предложение доступно для субагентов, авторизуйтесь

Сдам Бизнес-центр/офисный центр, 400 м²

Код объекта: 129854.
Тип объекта: Бизнес-центр/офисный центр.
Площадь: 400 м².
Этаж / Этажность: 2 / 3.
Назначения: Офис, Услуги.

Описание и характеристики

АРЕНДА ОТ СОБСТВЕННИКА.
БЕЗ КОМИССИИ ДЛЯ АРЕНДАТОРА.

Сдаётся в аренду два офисных этажа, состоящих из 16 кабинетов, расположенных по адресу: ул. Aндpeeвcкая, д.10/13

Отдельными характеристиками и преимуществами помещения являются:
- Меблированы;
- Кабинетная планировка;
- Близость автобусной остановки;
- Тихий район;
- Свежий ремонт;
- Собственная зона парковки;
- Круглосуточный доступ;
- Система контроля управления доступов в здании;
- Система пожарной безопасности;
- Система видеонаблюдения по периметру и парковке;
- Электричество - 15 кВт.

Cтоимость аренды помещения составляет 350 000 рублей + компенсация КУ согласно прибора учета.

Перейти в карточку объекта в CRM: 129854.

АРР Великий Новгород

+7 921 730-92-01

или оставьте ваш номер, и я перезвоню в течение 30 минут

Отправляя заявку вы соглашаетесь на обработку персональных данных

350 000 руб.

?

$ 4 302

€ 3 716

875 руб./м²


400 м²

2/3 этажей

Код объекта

129854

Предложение доступно для субагентов, авторизуйтесь

АРР Великий Новгород

+7 921 730-92-01

или оставьте ваш номер, и я перезвоню в течение 30 минут

Отправляя заявку вы соглашаетесь на обработку персональных данных

Похожие объявления

Посмотреть все похожие объявления
1/5
Код объекта: 300866.
Тип объекта: Помещение свободного назначения.
Площадь: 45.8 м².
Этаж / Этажность: 2 / 4.
1/6
Код объекта: 300869.
Тип объекта: Помещение свободного назначения.
Площадь: 47.8 м².
Этаж / Этажность: 4 / 4.
1/11
Код объекта: 301888.
Тип объекта: Торговый центр.
Площадь: 220 м².
Этаж / Этажность: 2 / 2.
1/6
Код объекта: 344211.
Тип объекта: Торговое помещение.
Площадь: 16.8 м².
Этаж / Этажность: 1 / 2.
1/3
Код объекта: 367077.
Тип объекта: Офисное помещение.
Площадь: 27 м².
Этаж / Этажность: 3 / 4.

Не хочу искать, перезвоните мне!

Оставьте номер телефона, наш специалист свяжется с вами и поможет с подбором недвижимости!