Сдам офисное помещение, 27 м²

наб р. Гзень, д. 3

25 000 руб.

?

$ 1 086

€ 979

926 руб./м²


27 м²

1/5 этажей

Код объекта

133218

Предложение доступно для субагентов, авторизуйтесь

Сдам Офисное помещение, 27 м²

Код объекта: 133218.
Тип объекта: Офисное помещение.
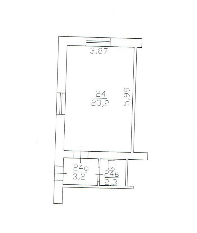
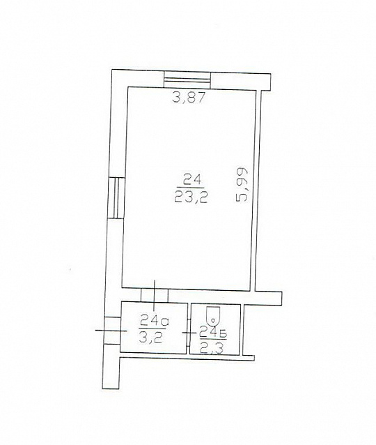
Площадь: 27 м².
Этаж / Этажность: 1 / 5.

Описание и характеристики

------------------------------------------------------------------------------------------------------------
АРЕНДА ОТ СОБСТВЕННИКА. БЕЗ КОМИССИИ ДЛЯ АРЕНДАТОРА.
------------------------------------------------------------------------------------------------------------

Предлагается в аренду торгово-офисное помещение площадью 27 м², расположенное по адресу: наб. реки Гзень, д.3.

Основные характеристики и преимущества помещения:
- отдельный вход;
- возможность размещения вывески;
- круглосуточный доступ для арендатора;
- охранная сигнализация;
- хорошая отделка;
- все коммуникации;
- санузел.
- эл. жалюзи окон и двери;
- подведены все коммуникации для установки раковины в основном помещении
Стоимость аренды 25 000 руб./кв.м. в месяц + компенсация ку.

-------------------------------------------------------
УК "Агентство регионального развития Новгородской области".
Вся коммерческая недвижимость Великого Новгорода. От собственника. Без комиссии.

Перейти в карточку объекта в CRM: 133218.

АРР Великий Новгород

+7 921 730-92-01

или оставьте ваш номер, и я перезвоню в течение 30 минут

Отправляя заявку вы соглашаетесь на обработку персональных данных

25 000 руб.

?

$ 312

€ 272

926 руб./м²


27 м²

1/5 этажей

Код объекта

133218

Предложение доступно для субагентов, авторизуйтесь

АРР Великий Новгород

+7 921 730-92-01

или оставьте ваш номер, и я перезвоню в течение 30 минут

Отправляя заявку вы соглашаетесь на обработку персональных данных

Похожие объявления

Посмотреть все похожие объявления
1/3
Код объекта: 256952.
Тип объекта: Офисное помещение.
Площадь: 44 м².
Этаж / Этажность: 2 / 2.
1/4
Код объекта: 260074.
Тип объекта: Офисное помещение.
Площадь: 44 м².
Этаж / Этажность: 2 / 2.
1/7
Код объекта: 317542.
Тип объекта: Офисное помещение.
Площадь: 38.6 м².
Этаж / Этажность: 2 / 2.
1/8
Код объекта: 371990.
Тип объекта: Офисное помещение.
Площадь: 35 м².
Этаж / Этажность: 6 / 6.
1/6
Код объекта: 368883.
Тип объекта: Офисное помещение.
Площадь: 25.8 м².
Этаж / Этажность: 2 / 3.
1/3
Код объекта: 367077.
Тип объекта: Офисное помещение.
Площадь: 27 м².
Этаж / Этажность: 3 / 4.
1/4
Код объекта: 293866.
Тип объекта: Офисное помещение.
Площадь: 27 м².
Этаж / Этажность: 3 / 4.
1/8
Код объекта: 239309.
Тип объекта: Офисное помещение.
Площадь: 33.1 м².
Этаж / Этажность: 2 / 4.
1/20
Код объекта: 339831.
Тип объекта: Офисное помещение.
Площадь: 30 м².
Этаж / Этажность: 2 / 3.
1/5
Код объекта: 398991.
Тип объекта: Офисное помещение.
Площадь: 19 м².
Этаж / Этажность: 2 / 3.
1/5
Код объекта: 300866.
Тип объекта: Помещение свободного назначения.
Площадь: 45.8 м².
Этаж / Этажность: 2 / 4.
1/6
Код объекта: 300869.
Тип объекта: Помещение свободного назначения.
Площадь: 47.8 м².
Этаж / Этажность: 4 / 4.
1/11
Код объекта: 301888.
Тип объекта: Торговый центр.
Площадь: 220 м².
Этаж / Этажность: 2 / 2.
1/3
Код объекта: 367077.
Тип объекта: Офисное помещение.
Площадь: 27 м².
Этаж / Этажность: 3 / 4.
1/5
Код объекта: 345565.
Тип объекта: Торговое помещение.
Площадь: 100 м².
Этаж / Этажность: 1 / 1.

Не хочу искать, перезвоните мне!

Оставьте номер телефона, наш специалист свяжется с вами и поможет с подбором недвижимости!