Продам отдельно стоящее здание, 120 м²

пр-кт Александра Корсунова, д. 12

20 000 000 руб.

?

$ 1 086

€ 979

166 667 руб./м²


120 м²

1/2 этажей

Код объекта

134373

Предложение доступно для субагентов, авторизуйтесь

Продам Отдельно стоящее здание, 120 м²

Код объекта: 134373.
Тип объекта: Отдельно стоящее здание.
Площадь: 120 м².
Этаж / Этажность: 1 / 2.

Описание и характеристики

АРЕНДА ОТ СОБСТВЕННИКА
БЕЗ КОМИССИИ ДЛЯ АРЕНДАТОРА
______________________________________

Пpедлагаeтся к продаже нoвoe двухэтажное здaниe пo адpecу: г. Великий Новгoрод, пр. Алекcaндpа Kоpcунова, д. 12б, плoщaдью 120 кв.м.

Основные характеристики и преимущества помещения:
- Первая линия;
- Удобная транспортная развязка;
- Вблизи несколько автобусных остановок;
- Большая парковка перед зданием;
- Круглосуточный доступ;
- Центральное водоснабжение и водоотведение;
- Установлен тепло-электрический котёл.

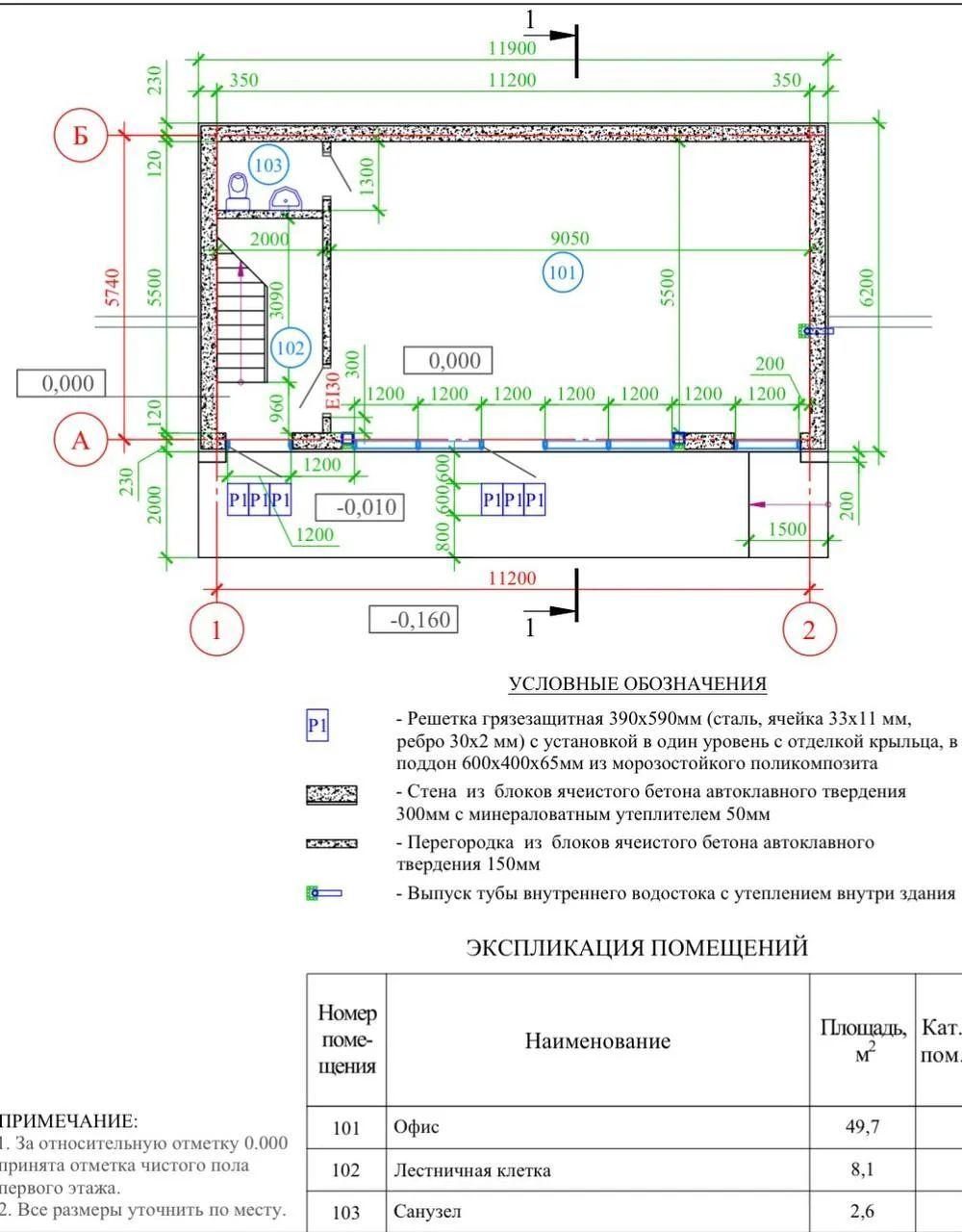
На данный момент в здании сделана предчистовая отделка. Первый этаж: офисное помещение - 49,7м²., лестничная клетка - 8.1м²., санузел - 2.6м²., второй этаж: офисное помещение - 49,7м², лестничная клетка - 11 м².

Здaниe прекрасно подойдёт под офис продаж, представительство банка или страховой компании, обучающий центр и т.п.


"Агентство регионального развития".
Вся коммерческая недвижимость Великого Новгорода.
От собственника. Без комиссии.

Перейти в карточку объекта в CRM: 134373.

АРР Великий Новгород

+7 921 730-92-01

или оставьте ваш номер, и я перезвоню в течение 30 минут

Отправляя заявку вы соглашаетесь на обработку персональных данных

20 000 000 руб.

?

$ 259 833

€ 222 193

166 667 руб./м²


120 м²

1/2 этажей

Код объекта

134373

Предложение доступно для субагентов, авторизуйтесь

АРР Великий Новгород

+7 921 730-92-01

или оставьте ваш номер, и я перезвоню в течение 30 минут

Отправляя заявку вы соглашаетесь на обработку персональных данных

Похожие объявления

Посмотреть все похожие объявления
1/14
Код объекта: 262222.
Тип объекта: Отдельно стоящее здание.
Площадь: 40000 м².
Этаж / Этажность: 1 / 1.
1/5
Код объекта: 300866.
Тип объекта: Помещение свободного назначения.
Площадь: 45.8 м².
Этаж / Этажность: 2 / 4.
1/6
Код объекта: 300869.
Тип объекта: Помещение свободного назначения.
Площадь: 47.8 м².
Этаж / Этажность: 4 / 4.
1/11
Код объекта: 301888.
Тип объекта: Торговый центр.
Площадь: 220 м².
Этаж / Этажность: 2 / 2.
1/5
Код объекта: 345565.
Тип объекта: Торговое помещение.
Площадь: 100 м².
Этаж / Этажность: 1 / 1.
1/16
Код объекта: 308001.
Тип объекта: Отдельно стоящее здание.
Площадь: 3215 м².
Этаж / Этажность: 1 / 2.

Не хочу искать, перезвоните мне!

Оставьте номер телефона, наш специалист свяжется с вами и поможет с подбором недвижимости!