Продам производственный комплекс, 1 562 м²

ул Связи, д. 11

37 000 000 руб.

?

$ 1 086

€ 979

23 688 руб./м²


1562 м²

1/2 этажей

Код объекта

127393

Предложение доступно для субагентов, авторизуйтесь

Продам производственный комплекс, 1 562 м²

Код объекта: 127393.
Тип объекта: Производственное помещение.
Площадь: 1562 м².
Этаж / Этажность: 1 / 2.

Описание и характеристики

ПРОДАЖА ПРОИЗВОДСТВЕННОГО КОМПЛЕКСА

Предлагается в продажу производственная площадка общей площадью 1562 м² в черте города. Земельный участок в долгосрочной аренде (0.5 га). Идеально под пищевое или косметическое производство.

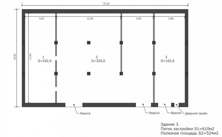
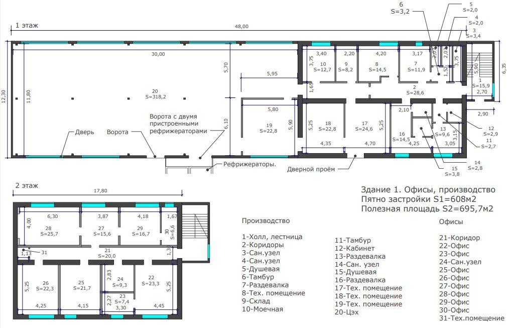
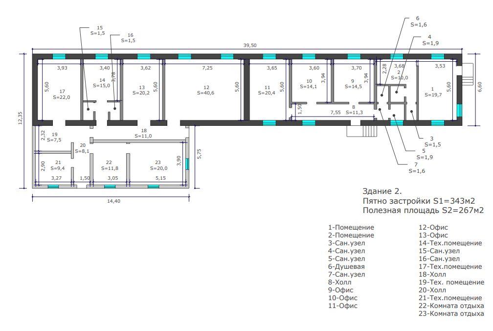
Состав комплекса:
- здание АБК + производство площадью 695 м²;
- здание производственное 343 м²;
- здание производственное 524 м².

Характеристики и преимущества площадки:
- автоматические откатные ворота и грузовые распашные ворота, 2 въезда;
- мощность 100 кВт;
- отопление центральное ;
- водоснабжение центральное;
- водоотведение центральное;
- полное соответствие площадки под пищевое производство;
- офисные помещения, складские помещения на территории.

Стоимость 37 000 000 рублей (без учета НДС!!!). Рассмотрим встречные предложения.
Юридическое сопровождение, гарантируем чистоту сделки. Подробнее по телефону. Звоните!

«АГЕНТСТВО РЕГИОНАЛЬНОГО РАЗВИТИЯ»
Вся коммерческая недвижимость Великого Новгорода.

Перейти в карточку объекта в CRM: 127393.

АРР Великий Новгород

+7 921 730-92-01

или оставьте ваш номер, и я перезвоню в течение 30 минут

Отправляя заявку вы соглашаетесь на обработку персональных данных

37 000 000 руб.

?

$ 487 326

€ 415 455

23 688 руб./м²


1562 м²

1/2 этажей

Код объекта

127393

Предложение доступно для субагентов, авторизуйтесь

АРР Великий Новгород

+7 921 730-92-01

или оставьте ваш номер, и я перезвоню в течение 30 минут

Отправляя заявку вы соглашаетесь на обработку персональных данных

Похожие объявления

Посмотреть все похожие объявления
1/20
Код объекта: 350773.
Тип объекта: Производственное помещение.
Площадь: 1850 м².
Этаж / Этажность: 1 / 1.
1/11
Код объекта: 356701.
Тип объекта: Производственное помещение.
Площадь: 3000 м².
Этаж / Этажность: 1 / 1.
1/14
Код объекта: 264618.
Тип объекта: Производственное помещение.
Площадь: 1700 м².
Этаж / Этажность: 1 / 2.
1/3
Код объекта: 370455.
Тип объекта: Производственное помещение.
Площадь: 1290 м².
Этаж / Этажность: 1 / 2.
1/20
Код объекта: 350773.
Тип объекта: Производственное помещение.
Площадь: 1850 м².
Этаж / Этажность: 1 / 1.
1/5
Код объекта: 300866.
Тип объекта: Помещение свободного назначения.
Площадь: 45.8 м².
Этаж / Этажность: 2 / 4.
1/6
Код объекта: 300869.
Тип объекта: Помещение свободного назначения.
Площадь: 47.8 м².
Этаж / Этажность: 4 / 4.
1/11
Код объекта: 301888.
Тип объекта: Торговый центр.
Площадь: 220 м².
Этаж / Этажность: 2 / 2.
1/3
Код объекта: 367077.
Тип объекта: Офисное помещение.
Площадь: 27 м².
Этаж / Этажность: 3 / 4.
1/17
Код объекта: 370996.
Тип объекта: Помещение свободного назначения.
Площадь: 98 м².
Этаж / Этажность: -1 / 9.

Не хочу искать, перезвоните мне!

Оставьте номер телефона, наш специалист свяжется с вами и поможет с подбором недвижимости!