Сдам офис, 200 м²

ул Андреевская, д. 12

200 000 руб.

?

$ 1 086

€ 979

1 000 руб./м²


200 м²

2/3 этажей

Код объекта

127465

Предложение доступно для субагентов, авторизуйтесь

Сдам офис, 200 м²

Код объекта: 127465.
Тип объекта: Офисное помещение.
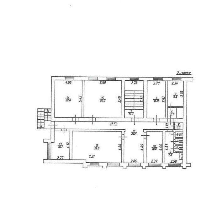
Площадь: 200 м².
Этаж / Этажность: 2 / 3.
Назначения: Офис, Услуги.

Описание и характеристики

АРЕНДА ОТ СОБСТВЕННИКА.
БЕЗ КОМИССИИ ДЛЯ АРЕНДАТОРА.

Сдаётся в аренду офисный этаж, состоящий из 8 кабинетов, расположенный по адресу: ул. Aндpeeвcкая, д.10/13

Отдельными характеристиками и преимуществами помещения являются:
- Меблированы;
- Кабинетная планировка;
- Близость автобусной остановки;
- Тихий район;
- Свежий ремонт;
- Собственная зона парковки;
- Круглосуточный доступ;
- Система контроля управления доступов в здании;
- Система пожарной безопасности;
- Система видеонаблюдения по периметру и парковке.

Cтоимость аренды помещения составляет 200 000 рублей + компенсация электроэнергии согласно прибора учета.

«АГЕНТСТВО РЕГИОНАЛЬНОГО РАЗВИТИЯ»
Вся коммерческая недвижимость Великого Новгорода.
От собственника без комиссии.

Звоните! Покажем в удобное для Вас время!

Перейти в карточку объекта в CRM: 127465.

АРР Великий Новгород

+7 921 730-92-01

или оставьте ваш номер, и я перезвоню в течение 30 минут

Отправляя заявку вы соглашаетесь на обработку персональных данных

200 000 руб.

?

$ 2 574

€ 2 193

1 000 руб./м²


200 м²

2/3 этажей

Код объекта

127465

Предложение доступно для субагентов, авторизуйтесь

АРР Великий Новгород

+7 921 730-92-01

или оставьте ваш номер, и я перезвоню в течение 30 минут

Отправляя заявку вы соглашаетесь на обработку персональных данных

Похожие объявления

Посмотреть все похожие объявления
1/5
Код объекта: 41111.
Тип объекта: Офисное помещение.
Площадь: 2000 м².
Этаж / Этажность: 2 / 3.
1/12
Код объекта: 306708.
Тип объекта: Офисное помещение.
Площадь: 370 м².
Этаж / Этажность: 2 / 2.
1/17
Код объекта: 262831.
Тип объекта: Офисное помещение.
Площадь: 230 м².
Этаж / Этажность: 2 / 3.
1/8
Код объекта: 206091.
Тип объекта: Офисное помещение.
Площадь: 160 м².
Этаж / Этажность: 2 / 5.
1/12
Код объекта: 39637.
Тип объекта: Офисное помещение.
Площадь: 155 м².
Этаж / Этажность: 4 / 8.
1/5
Код объекта: 300866.
Тип объекта: Помещение свободного назначения.
Площадь: 45.8 м².
Этаж / Этажность: 2 / 4.
1/6
Код объекта: 300869.
Тип объекта: Помещение свободного назначения.
Площадь: 47.8 м².
Этаж / Этажность: 4 / 4.
1/11
Код объекта: 301888.
Тип объекта: Торговый центр.
Площадь: 220 м².
Этаж / Этажность: 2 / 2.
1/3
Код объекта: 367077.
Тип объекта: Офисное помещение.
Площадь: 27 м².
Этаж / Этажность: 3 / 4.
1/17
Код объекта: 370996.
Тип объекта: Помещение свободного назначения.
Площадь: 98 м².
Этаж / Этажность: -1 / 9.

Не хочу искать, перезвоните мне!

Оставьте номер телефона, наш специалист свяжется с вами и поможет с подбором недвижимости!