Сдам офисное помещение, 160 м²

пр-кт Мира, д. 32, корп. 1

96 000 руб.

?

$ 1 086

€ 979

600 руб./м²


160 м²

2/5 этажей

Код объекта

88059

Предложение доступно для субагентов, авторизуйтесь

Сдам Офисное помещение, 160 м²

Код объекта: 88059.
Тип объекта: Офисное помещение.
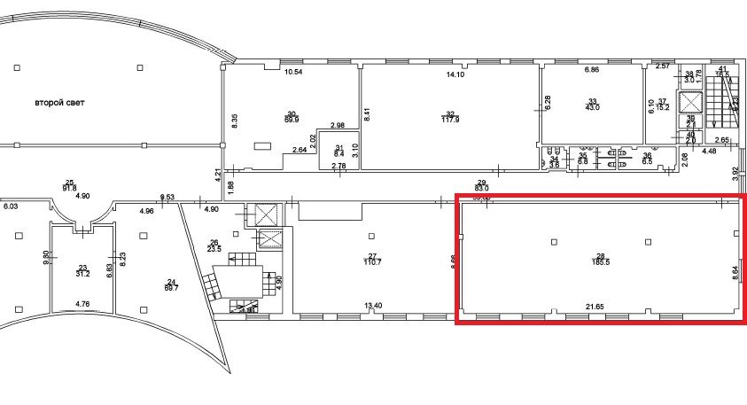
Площадь: 160 м².
Этаж / Этажность: 2 / 5.

Описание и характеристики

АРЕНДА ОТ СОБСТВЕННИКА. БЕЗ КОМИССИИ ДЛЯ АРЕНДАТОРА
----------------------------------------------------------------------------------------------------------------
Предлагается в аренду офисные помещение в современном бизнес центре
площадью 12 500 кв.м., расположенное по адресу г. Великий Новгород, проспект Мира, д.32 корпус 1.
Аренда помещения 185.5 кв.м. на 2 этаже здания
Основные характеристики и преимущества объекта:
- расположен в центре западного района (самый густонаселенный район города);
- современный бизнес центр со всеми коммуникациями 2010 года постройки
- 1 этаж бизнес центра занимает "Сбербанк", кофейня "Valencia";
- хороший ремонт;
- наличие приточной/вытяжной системы вентиляции
- наличие сплит систем в каждом помещении
- системы видеонаблюдения в БЦ и по периметру
- пост физической охраны
- возможность круглосуточного доступа в помещение
- наличие 2 лифтов
- помещения оборудованы пожарной и охранной сигнализацией;
- наличие конферецзалла с возможностью его почасовой аренды
- помещение имеет 2 входа;
- формат помещения open-space

Cтоимость аренды составляет 600 рублей за кв.м., включая все ку и электроэнергию (при отсутствии оборудования с высоким потреблением)



-------------------------------------------------------
УК "Агентство регионального развития Новгородской области".
Вся коммерческая недвижимость Великого Новгорода. От собственника. Без комиссии

Перейти в карточку объекта в CRM: 88059.

АРР Великий Новгород

+7 921 730-92-01

или оставьте ваш номер, и я перезвоню в течение 30 минут

Отправляя заявку вы соглашаетесь на обработку персональных данных

96 000 руб.

?

$ 1 233

€ 1 060

600 руб./м²


160 м²

2/5 этажей

Код объекта

88059

Предложение доступно для субагентов, авторизуйтесь

АРР Великий Новгород

+7 921 730-92-01

или оставьте ваш номер, и я перезвоню в течение 30 минут

Отправляя заявку вы соглашаетесь на обработку персональных данных

Похожие объявления

Посмотреть все похожие объявления
1/17
Код объекта: 262831.
Тип объекта: Офисное помещение.
Площадь: 230 м².
Этаж / Этажность: 2 / 3.
1/12
Код объекта: 39637.
Тип объекта: Офисное помещение.
Площадь: 155 м².
Этаж / Этажность: 4 / 8.
1/9
Код объекта: 263064.
Тип объекта: Офисное помещение.
Площадь: 135 м².
Этаж / Этажность: 1 / 4.
1/23
Код объекта: 379427.
Тип объекта: Офисное помещение.
Площадь: 263 м².
Этаж / Этажность: 2 / 2.
1/22
Код объекта: 403617.
Тип объекта: Офисное помещение.
Площадь: 114 м².
Этаж / Этажность: 1 / 5.
1/12
Код объекта: 39637.
Тип объекта: Офисное помещение.
Площадь: 155 м².
Этаж / Этажность: 4 / 8.
1/13
Код объекта: 368736.
Тип объекта: Офисное помещение.
Площадь: 200 м².
Этаж / Этажность: 2 / 3.
1/9
Код объекта: 263064.
Тип объекта: Офисное помещение.
Площадь: 135 м².
Этаж / Этажность: 1 / 4.
1/22
Код объекта: 403617.
Тип объекта: Офисное помещение.
Площадь: 114 м².
Этаж / Этажность: 1 / 5.
1/5
Код объекта: 300866.
Тип объекта: Помещение свободного назначения.
Площадь: 45.8 м².
Этаж / Этажность: 2 / 4.
1/6
Код объекта: 300869.
Тип объекта: Помещение свободного назначения.
Площадь: 47.8 м².
Этаж / Этажность: 4 / 4.
1/11
Код объекта: 301888.
Тип объекта: Торговый центр.
Площадь: 220 м².
Этаж / Этажность: 2 / 2.
1/3
Код объекта: 367077.
Тип объекта: Офисное помещение.
Площадь: 27 м².
Этаж / Этажность: 3 / 4.
1/17
Код объекта: 370996.
Тип объекта: Помещение свободного назначения.
Площадь: 98 м².
Этаж / Этажность: -1 / 9.

Не хочу искать, перезвоните мне!

Оставьте номер телефона, наш специалист свяжется с вами и поможет с подбором недвижимости!