Сдам офисное помещение, 60 м²

пр-кт Мира, д. 32, корп. 1

42 000 руб.

?

$ 1 086

€ 979

700 руб./м²


60 м²

3/5 этажей

Код объекта

88058

Предложение доступно для субагентов, авторизуйтесь

Сдам Офисное помещение, 60 м²

Код объекта: 88058.
Тип объекта: Офисное помещение.
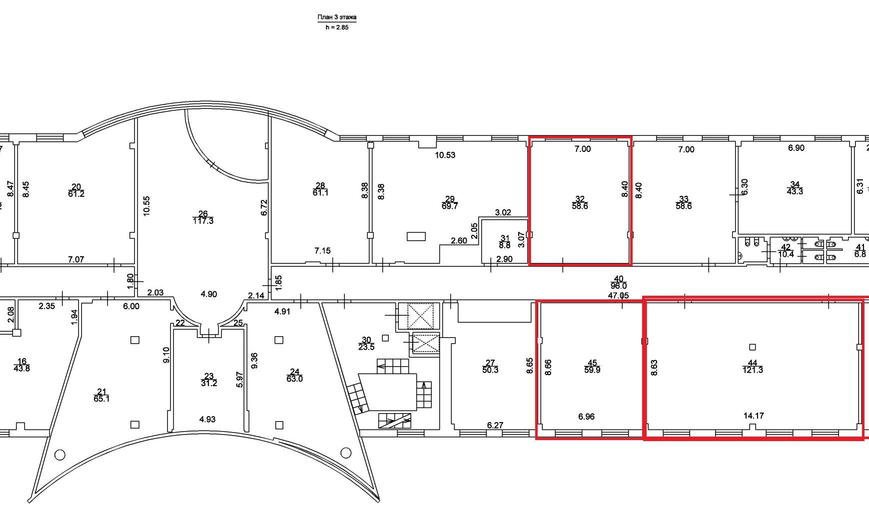
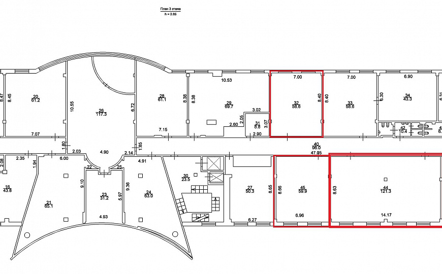
Площадь: 60 м².
Этаж / Этажность: 3 / 5.

Описание и характеристики

АРЕНДА ОТ СОБСТВЕННИКА
БЕЗ КОМИССИИ ДЛЯ АРЕНДАТОРА
---------------------------------------------------------------------------

Предлагается в аренду офисные помещение в современном бизнес центре
площадью 12 500 кв.м., расположенное по адресу г. Великий Новгород, проспект Мира, д.32 корпус 1.
В настоящий момент свободны офисные помещения 60 кв.м.,120 кв.м., 160 кв.м.
Основные характеристики и преимущества объекта:
- расположен в центре западного района (самый густонаселенный район города);
- современный бизнес центр со всеми коммуникациями 2010 года постройки
- 1 этаж бизнес центра занимает "Сбербанк";
- хороший ремонт;
- наличие приточной/вытяжной системы вентиляции
- наличие сплит систем в каждом помещении
- системы видеонаблюдения в БЦ и по периметру
- возможность круглосуточного доступа в помещение
- возможность установки СКУД на входе в помещение
- возможность аренды парковочного места на парковке по ставке 2000 р/мес
- возможность аренды парковочного места на подземном паркинге
- возможность использования юридического адреса в качестве юридического адреса
- наличие лифтов
- помещения оборудованы пожарной и охранной сигнализацией;
- на первом этаже БЦ расположена кофейня, также в здании функционирует кафе
Стоимость 1 кв.м. составляет 700 рублей. + компенсация электроэнергии согласно прибору учета.




-------------------------------------------------------
УК "Агентство регионального развития Новгородской области".
Вся коммерческая недвижимость Великого Новгорода. От собственника. Без комиссии

Перейти в карточку объекта в CRM: 88058.

АРР Великий Новгород

+7 921 730-92-01

или оставьте ваш номер, и я перезвоню в течение 30 минут

Отправляя заявку вы соглашаетесь на обработку персональных данных

42 000 руб.

?

$ 541

€ 460

700 руб./м²


60 м²

3/5 этажей

Код объекта

88058

Предложение доступно для субагентов, авторизуйтесь

АРР Великий Новгород

+7 921 730-92-01

или оставьте ваш номер, и я перезвоню в течение 30 минут

Отправляя заявку вы соглашаетесь на обработку персональных данных

Похожие объявления

Посмотреть все похожие объявления
1/8
Код объекта: 262168.
Тип объекта: Офисное помещение.
Площадь: 65 м².
Этаж / Этажность: 2 / 3.
1/8
Код объекта: 239309.
Тип объекта: Офисное помещение.
Площадь: 33.1 м².
Этаж / Этажность: 2 / 4.
1/10
Код объекта: 378426.
Тип объекта: Офисное помещение.
Площадь: 42.4 м².
Этаж / Этажность: 4 / 5.
1/9
Код объекта: 378793.
Тип объекта: Офисное помещение.
Площадь: 60 м².
Этаж / Этажность: 3 / 5.
1/5
Код объекта: 368858.
Тип объекта: Офисное помещение.
Площадь: 45 м².
Этаж / Этажность: 2 / 2.
1/3
Код объекта: 256952.
Тип объекта: Офисное помещение.
Площадь: 44 м².
Этаж / Этажность: 2 / 2.
1/4
Код объекта: 260074.
Тип объекта: Офисное помещение.
Площадь: 44 м².
Этаж / Этажность: 2 / 2.
1/8
Код объекта: 262168.
Тип объекта: Офисное помещение.
Площадь: 65 м².
Этаж / Этажность: 2 / 3.
1/21
Код объекта: 260594.
Тип объекта: Офисное помещение.
Площадь: 50 м².
Этаж / Этажность: 2 / 2.
1/8
Код объекта: 375935.
Тип объекта: Офисное помещение.
Площадь: 47.3 м².
Этаж / Этажность: 2 / 3.
1/5
Код объекта: 300866.
Тип объекта: Помещение свободного назначения.
Площадь: 45.8 м².
Этаж / Этажность: 2 / 4.
1/6
Код объекта: 300869.
Тип объекта: Помещение свободного назначения.
Площадь: 47.8 м².
Этаж / Этажность: 4 / 4.
1/11
Код объекта: 301888.
Тип объекта: Торговый центр.
Площадь: 220 м².
Этаж / Этажность: 2 / 2.
1/3
Код объекта: 367077.
Тип объекта: Офисное помещение.
Площадь: 27 м².
Этаж / Этажность: 3 / 4.
1/17
Код объекта: 370996.
Тип объекта: Помещение свободного назначения.
Площадь: 98 м².
Этаж / Этажность: -1 / 9.

Не хочу искать, перезвоните мне!

Оставьте номер телефона, наш специалист свяжется с вами и поможет с подбором недвижимости!