Сдам производственное помещение, 300 м²

Вяжищский проезд, д. 37

80 000 руб.

?

$ 1 086

€ 979

267 руб./м²


300 м²

1/1 этажей

Код объекта

113815

Предложение доступно для субагентов, авторизуйтесь

Сдам Производственное помещение, 300 м²

Код объекта: 113815.
Тип объекта: Производственное помещение.
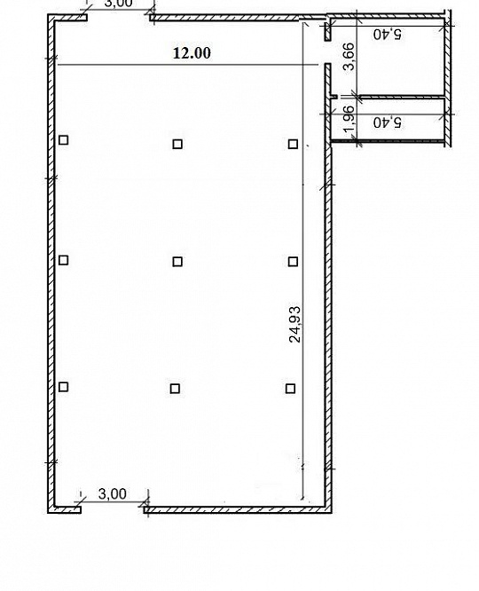
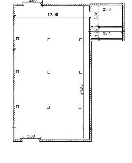
Площадь: 300 м².
Этаж / Этажность: 1 / 1.

Описание и характеристики

АРЕНДА ОТ СОБСТВЕННИКА. БЕЗ КОМИССИИ ДЛЯ АРЕНДАТОРА
----------------------------------------------------------------------------------------------------------------

Предлагается в аренду производственное помещение, расположенное по адресу г. Великий Новгород, Вяжищский проезд, площадью 300 кв.м.
Отдельными преимуществами помещения являются:
- подведенная мощность до 200 КВт
- дополнительно есть возможность аренды 100 кв. м. холодных складов
- в стоимость включена аренда ЗУ перед зданием, а также крытого навеса площадью 100 кв.м.
- круглосуточная физическая охрана территории, на которой расположен объект;
- высота ворот 3.4 метра (сквозной проезд 2е ворот)
- высота до конька крыши 6 метров
- кран балка (высота подъема 3.5 метра)
- под плитка
- собственный су и вода
- помещение оборудовано 2 вытяжками

Стоимость аренды составляет 80 000 рублей за кв. м. Электроэнергия согласно приборов учета

Перейти в карточку объекта в CRM: 113815.

АРР Великий Новгород

+7 921 730-92-01

или оставьте ваш номер, и я перезвоню в течение 30 минут

Отправляя заявку вы соглашаетесь на обработку персональных данных

80 000 руб.

?

$ 1 051

€ 895

267 руб./м²


300 м²

1/1 этажей

Код объекта

113815

Предложение доступно для субагентов, авторизуйтесь

АРР Великий Новгород

+7 921 730-92-01

или оставьте ваш номер, и я перезвоню в течение 30 минут

Отправляя заявку вы соглашаетесь на обработку персональных данных

Похожие объявления

Посмотреть все похожие объявления
1/12
Код объекта: 356807.
Тип объекта: Производственное помещение.
Площадь: 160 м².
Этаж / Этажность: 1 / 1.
1/6
Код объекта: 341890.
Тип объекта: Производственное помещение.
Площадь: 300 м².
Этаж / Этажность: 1 / 1.
1/6
Код объекта: 368177.
Тип объекта: Производственное помещение.
Площадь: 430 м².
Этаж / Этажность: 1 / 1.
1/8
Код объекта: 415851.
Тип объекта: Производственное помещение.
Площадь: 205 м².
Этаж / Этажность: 1 / 2.
1/15
Код объекта: 372655.
Тип объекта: Производственное помещение.
Площадь: 470 м².
Этаж / Этажность: 1 / 1.
1/28
Код объекта: 203253.
Тип объекта: Производственное помещение.
Площадь: 300 м².
Этаж / Этажность: 1 / 4.
1/6
Код объекта: 341890.
Тип объекта: Производственное помещение.
Площадь: 300 м².
Этаж / Этажность: 1 / 1.
1/15
Код объекта: 200004.
Тип объекта: Производственное помещение.
Площадь: 288 м².
Этаж / Этажность: 2 / 2.
1/6
Код объекта: 421522.
Тип объекта: Производственное помещение.
Площадь: 346 м².
Этаж / Этажность: 1 / 1.
1/5
Код объекта: 300866.
Тип объекта: Помещение свободного назначения.
Площадь: 45.8 м².
Этаж / Этажность: 2 / 4.
1/6
Код объекта: 300869.
Тип объекта: Помещение свободного назначения.
Площадь: 47.8 м².
Этаж / Этажность: 4 / 4.
1/11
Код объекта: 301888.
Тип объекта: Торговый центр.
Площадь: 220 м².
Этаж / Этажность: 2 / 2.
1/5
Код объекта: 345565.
Тип объекта: Торговое помещение.
Площадь: 100 м².
Этаж / Этажность: 1 / 1.
1/16
Код объекта: 308001.
Тип объекта: Отдельно стоящее здание.
Площадь: 3215 м².
Этаж / Этажность: 1 / 2.

Не хочу искать, перезвоните мне!

Оставьте номер телефона, наш специалист свяжется с вами и поможет с подбором недвижимости!