Сдам производственное помещение, 970 м²

Новгородская обл

485 000 руб.

?

$ 1 086

€ 979

500 руб./м²


970 м²

1/1 этажей

Код объекта

133944

Предложение доступно для субагентов, авторизуйтесь

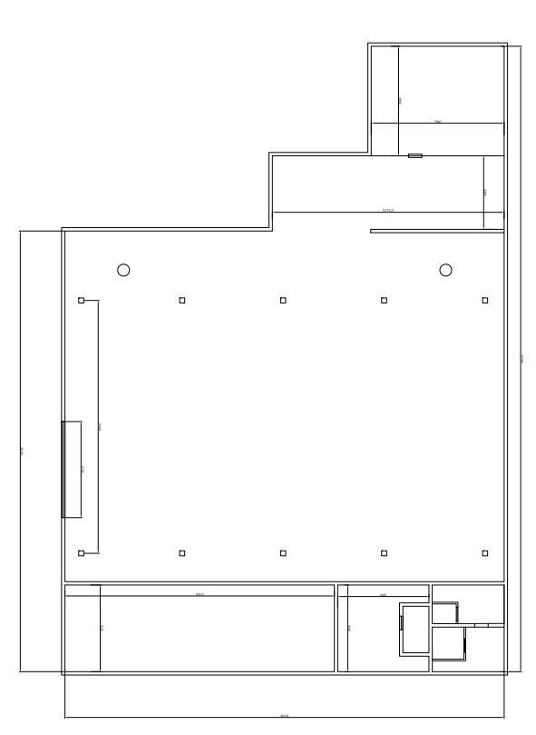
Сдам Производственное помещение, 970 м²

Код объекта: 133944.
Тип объекта: Производственное помещение.
Площадь: 970 м².
Этаж / Этажность: 1 / 1.

Описание и характеристики

АРЕНДА ОТ СОБСТВЕННИКА. БЕЗ КОМИССИИ.

Предлагается в аренду отапливаемое складское помещение площадью 970 м² с возможностью увеличения до 2000 м². Под автосервис, производство металлоконструкций, склад и прочая деятельность. Помещение будет освобождено от оборудования.

Характеристики и преимущества помещения:
- бетонные полы с топингом;
- 250 кВт от двух подстанций с автовводом резерва;
- будет подведено водоснабжение;
- отопление газ;
- рабочая кран-балка г/п 5 тонн с длиной хода 15 м.;
- возможность аренды офиса/торгового помещения (~120 м²);
- высота ворот 5.7х4 м.;
- высота потолков 8 метров;
- охраняемая территория с видеонаблюдением;
- доступ к территории 24/7;
- асфальтированный участок.

Арендная ставка 500 руб./м² + оплата К/У по приборам учета. Готовы к встречным предложениям! Звоните! Покажем в любое время.

«АГЕНТСТВО РЕГИОНАЛЬНОГО РАЗВИТИЯ»
Вся коммерческая недвижимость Великого Новгорода.

Перейти в карточку объекта в CRM: 133944.

АРР Великий Новгород

+7 921 730-92-01

или оставьте ваш номер, и я перезвоню в течение 30 минут

Отправляя заявку вы соглашаетесь на обработку персональных данных

485 000 руб.

?

$ 6 377

€ 5 411

500 руб./м²


970 м²

1/1 этажей

Код объекта

133944

Предложение доступно для субагентов, авторизуйтесь

АРР Великий Новгород

+7 921 730-92-01

или оставьте ваш номер, и я перезвоню в течение 30 минут

Отправляя заявку вы соглашаетесь на обработку персональных данных

Похожие объявления

Посмотреть все похожие объявления
1/13
Код объекта: 369520.
Тип объекта: Производственное помещение.
Площадь: 980 м².
Этаж / Этажность: 1 / 1.
1/14
Код объекта: 262300.
Тип объекта: Производственное помещение.
Площадь: 900 м².
Этаж / Этажность: 1 / 1.
1/13
Код объекта: 278137.
Тип объекта: Производственное помещение.
Площадь: 945 м².
Этаж / Этажность: 1 / 1.
1/20
Код объекта: 401536.
Тип объекта: Производственное помещение.
Площадь: 1450 м².
Этаж / Этажность: 1 / 2.
1/24
Код объекта: 400044.
Тип объекта: Производственное помещение.
Площадь: 1800 м².
Этаж / Этажность: 1 / 1.
1/9
Код объекта: 350763.
Тип объекта: Производственное помещение.
Площадь: 960 м².
Этаж / Этажность: 1 / 1.
1/13
Код объекта: 369520.
Тип объекта: Производственное помещение.
Площадь: 980 м².
Этаж / Этажность: 1 / 1.
1/14
Код объекта: 262300.
Тип объекта: Производственное помещение.
Площадь: 900 м².
Этаж / Этажность: 1 / 1.
1/13
Код объекта: 278137.
Тип объекта: Производственное помещение.
Площадь: 945 м².
Этаж / Этажность: 1 / 1.
1/13
Код объекта: 422390.
Тип объекта: Производственное помещение.
Площадь: 700 м².
Этаж / Этажность: 1 / 1.
1/5
Код объекта: 300866.
Тип объекта: Помещение свободного назначения.
Площадь: 45.8 м².
Этаж / Этажность: 2 / 4.
1/6
Код объекта: 300869.
Тип объекта: Помещение свободного назначения.
Площадь: 47.8 м².
Этаж / Этажность: 4 / 4.
1/11
Код объекта: 301888.
Тип объекта: Торговый центр.
Площадь: 220 м².
Этаж / Этажность: 2 / 2.
1/5
Код объекта: 345565.
Тип объекта: Торговое помещение.
Площадь: 100 м².
Этаж / Этажность: 1 / 1.
1/16
Код объекта: 308001.
Тип объекта: Отдельно стоящее здание.
Площадь: 3215 м².
Этаж / Этажность: 1 / 2.

Не хочу искать, перезвоните мне!

Оставьте номер телефона, наш специалист свяжется с вами и поможет с подбором недвижимости!