Объявление снято с публикации Посмотреть все похожие объявления

Сдам складское помещение, 2 000 м²

Сырковское шоссе, д. 27, корп. 1

400 000 руб.

?

$ 1 086

€ 979

200 руб./м²


2000 м²

1/1 этажей

Код объекта

106920

Предложение доступно для субагентов, авторизуйтесь

Сдам Складское помещение, 2 000 м²

Код объекта: 106920.
Тип объекта: Складское помещение.
Площадь: 2000 м².
Этаж / Этажность: 1 / 1.
Назначения: Производство, Склад.

Описание и характеристики

АРЕНДА ОТ СОБСТВЕННИКА. БЕЗ КОМИССИИ.

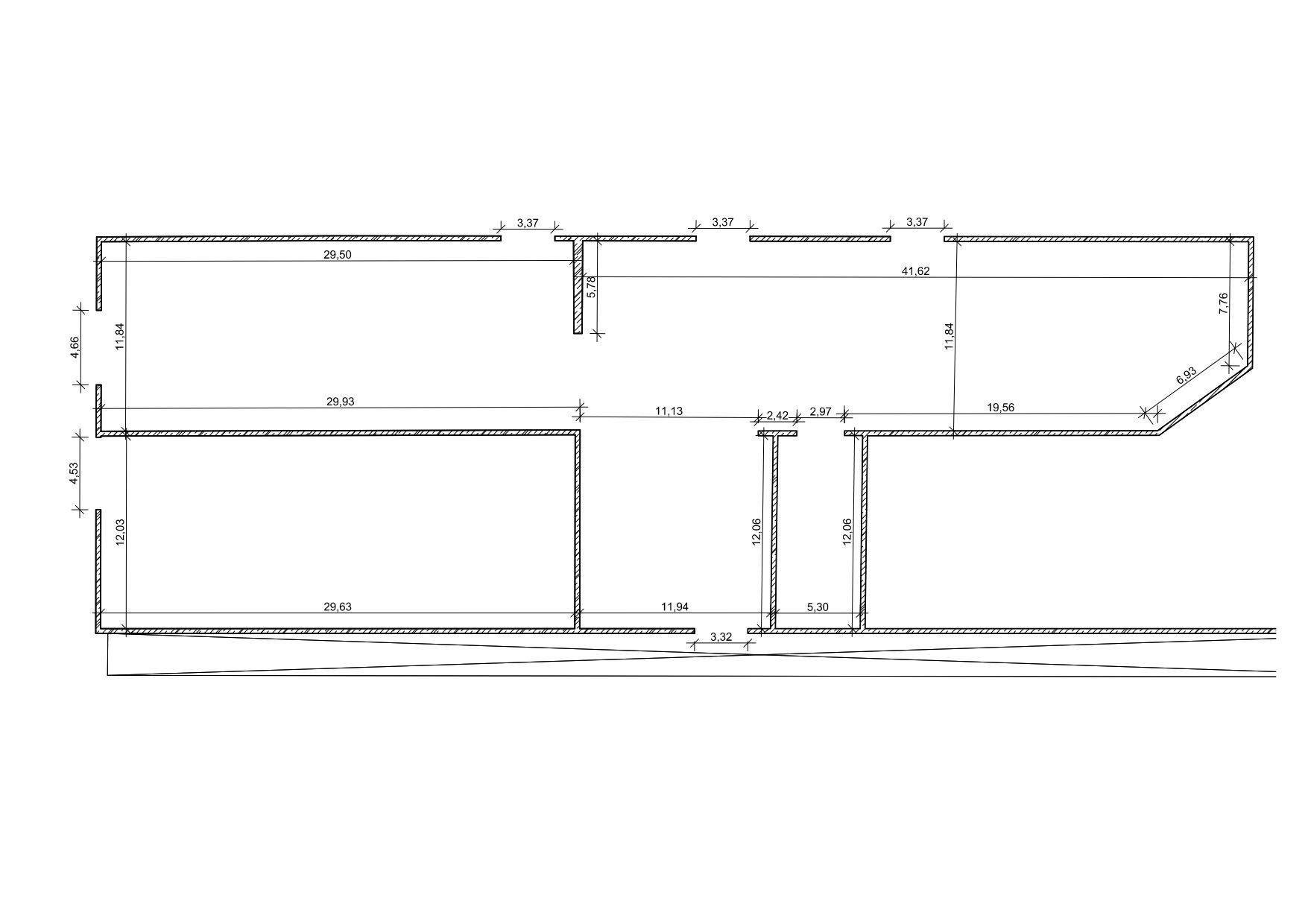
Предлагается в аренду производственно-складское помещение на Сырковском шоссе, 2000 м².

Доступные площади в аренду:
- склад 2-мя высокими воротами + пандус + ж/д пути, 1407 м²;
- склад с пандусом, 260 м²;
- склад с пандусом, 206 м².

Характеристики и преимущества помещения:
- ровные бетонные полы;
- ворота с пандусом для разгрузки;
- потолки 5 м.;
- двое больших ворот для заезда крупногабаритной техники (4 метра высота);
- двое ворот с пандусом с подъездом по ж/д путям;
- есть возможность аренды офисных помещений на территории;
- электричество 100 кВт, возможно увеличение;
- удобный подъезд грузового транспорта;
- доступ к территории 24/7.

Арендная ставка 200 руб./м². Готовы рассмотреть встречные варианты. Звоните! Покажем в любое время.

«АГЕНТСТВО РЕГИОНАЛЬНОГО РАЗВИТИЯ»
Вся коммерческая недвижимость Великого Новгорода.


склад, производство, складское помещение, помещение, центр города, потолки, высота, ворота, проем, бетон, промка, промышленность, промышленное, здание

Перейти в карточку объекта в CRM: 106920.

АРР Великий Новгород

+7 921 730-92-01

или оставьте ваш номер, и я перезвоню в течение 30 минут

Отправляя заявку вы соглашаетесь на обработку персональных данных

400 000 руб.

?

$ 5 317

€ 4 526

200 руб./м²


2000 м²

1/1 этажей

Код объекта

106920

К сожалению, этот объект уже сдан или продан. Но вы можете посмотреть похожие варианты или воспользоваться бесплатной услугой подбора подходящего помещения (участка). Для этого оставьте телефон в форме ниже

АРР Великий Новгород

+7 921 730-92-01

или оставьте ваш номер, и я перезвоню в течение 30 минут

Отправляя заявку вы соглашаетесь на обработку персональных данных

Объявление снято с публикации

Похожие объявления

Посмотреть все похожие объявления
1/14
Код объекта: 421934.
Тип объекта: Складское помещение.
Площадь: 873 м².
Этаж / Этажность: 1 / 1.
1/19
Код объекта: 345097.
Тип объекта: Складское помещение.
Площадь: 830 м².
Этаж / Этажность: 1 / 1.
1/18
Код объекта: 421935.
Тип объекта: Складское помещение.
Площадь: 1488 м².
Этаж / Этажность: 1 / 1.
1/5
Код объекта: 300866.
Тип объекта: Помещение свободного назначения.
Площадь: 45.8 м².
Этаж / Этажность: 2 / 4.
1/6
Код объекта: 300869.
Тип объекта: Помещение свободного назначения.
Площадь: 47.8 м².
Этаж / Этажность: 4 / 4.
1/11
Код объекта: 301888.
Тип объекта: Торговый центр.
Площадь: 220 м².
Этаж / Этажность: 2 / 2.
1/5
Код объекта: 345565.
Тип объекта: Торговое помещение.
Площадь: 100 м².
Этаж / Этажность: 1 / 1.
1/16
Код объекта: 308001.
Тип объекта: Отдельно стоящее здание.
Площадь: 3215 м².
Этаж / Этажность: 1 / 2.

Не хочу искать, перезвоните мне!

Оставьте номер телефона, наш специалист свяжется с вами и поможет с подбором недвижимости!