Сдам производственный комплекс, 1 408 м²

проезд Энергетиков, д. 6

633 600 руб.

?

$ 1 086

€ 979

450 руб./м²


1408 м²

1/2 этажей

Код объекта

118544

Предложение доступно для субагентов, авторизуйтесь

Сдам производственный комплекс, 1 408 м²

Код объекта: 118544.
Тип объекта: Производственное помещение.
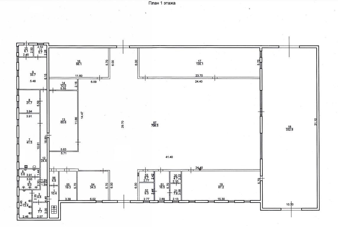
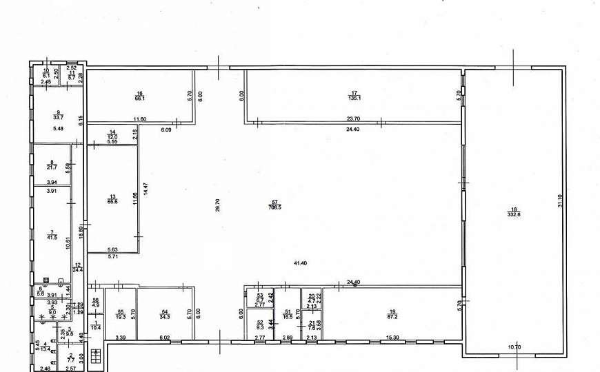
Площадь: 1408 м².
Этаж / Этажность: 1 / 2.

Описание и характеристики

АРЕНДА ОТ СОБСТВЕННИКА. БЕЗ КОМИССИИ.

Предлагается в аренду производственный комплекс на п. Энергетиков. Производственная база в отличном состоянии в Великом Новгороде. Разрешенное использование: для эксплуатации производственной базы.

Свободные площади для аренды:
- производственные помещения 1408,8 м²;
- 1 этаж адм. здания 290,8 м²;
- 2 этаж адм. здания 385,8 м²;
- 3 этаж адм. здания 171,8 м²;
- три ангара 144 м² (432 м² всего).
Итого: 2689,2 м².

Характеристики и преимущества площадки:
- большая асфальтированная площадь;
- физическая охрана;
- удобный логистический путь в Санкт-Петербург;
- отличный ремонт в офисах;
- 4 кран-балки разной тоннажности (2, 5, 10 тонн);
- душевые, сауна, комнаты для проживания;
- водоотведение центральное, водоснабжение;
- открытая площадь для дополнительного возведения сооружения;
- подведенная мощность 160 кВт, можно увеличить до 1 мВт;
- отапливается эл. котлом на 30 кВт;
- возможность подведения газа, в 20-ти метрах от участка.

Арендная ставка 450 руб/м².  Подробнее по телефону. Звоните!

«АГЕНТСТВО РЕГИОНАЛЬНОГО РАЗВИТИЯ»
Вся коммерческая недвижимость Великого Новгорода.

Перейти в карточку объекта в CRM: 118544.

АРР Великий Новгород

+7 921 730-92-01

или оставьте ваш номер, и я перезвоню в течение 30 минут

Отправляя заявку вы соглашаетесь на обработку персональных данных

633 600 руб.

?

$ 8 930

€ 7 728

450 руб./м²


1408 м²

1/2 этажей

Код объекта

118544

Предложение доступно для субагентов, авторизуйтесь

АРР Великий Новгород

+7 921 730-92-01

или оставьте ваш номер, и я перезвоню в течение 30 минут

Отправляя заявку вы соглашаетесь на обработку персональных данных

Похожие объявления

Посмотреть все похожие объявления
1/10
Код объекта: 379518.
Тип объекта: Производственное помещение.
Площадь: 3225 м².
Этаж / Этажность: 1 / 3.
1/13
Код объекта: 278137.
Тип объекта: Производственное помещение.
Площадь: 945 м².
Этаж / Этажность: 1 / 1.
1/17
Код объекта: 417424.
Тип объекта: Производственное помещение.
Площадь: 1872 м².
Этаж / Этажность: 1 / 1.
1/24
Код объекта: 422001.
Тип объекта: Производственное помещение.
Площадь: 970 м².
Этаж / Этажность: 1 / 1.
1/16
Код объекта: 468531.
Тип объекта: Производственное помещение.
Площадь: 1100 м².
Этаж / Этажность: 1 / 1.
1/25
Код объекта: 207148.
Тип объекта: Производственное помещение.
Площадь: 1749 м².
Этаж / Этажность: 1 / 1.
1/19
Код объекта: 429238.
Тип объекта: Производственное помещение.
Площадь: 1000 м².
Этаж / Этажность: 1 / 1.
1/17
Код объекта: 360089.
Тип объекта: Производственное помещение.
Площадь: 1300 м².
Этаж / Этажность: 1 / 1.
1/20
Код объекта: 401536.
Тип объекта: Производственное помещение.
Площадь: 1450 м².
Этаж / Этажность: 1 / 2.
1/24
Код объекта: 400044.
Тип объекта: Производственное помещение.
Площадь: 1800 м².
Этаж / Этажность: 1 / 1.
1/5
Код объекта: 300866.
Тип объекта: Помещение свободного назначения.
Площадь: 45.8 м².
Этаж / Этажность: 2 / 4.
1/6
Код объекта: 300869.
Тип объекта: Помещение свободного назначения.
Площадь: 47.8 м².
Этаж / Этажность: 4 / 4.
1/11
Код объекта: 301888.
Тип объекта: Торговый центр.
Площадь: 220 м².
Этаж / Этажность: 2 / 2.
1/5
Код объекта: 345565.
Тип объекта: Торговое помещение.
Площадь: 100 м².
Этаж / Этажность: 1 / 1.
1/16
Код объекта: 308001.
Тип объекта: Отдельно стоящее здание.
Площадь: 3215 м².
Этаж / Этажность: 1 / 2.

Не хочу искать, перезвоните мне!

Оставьте номер телефона, наш специалист свяжется с вами и поможет с подбором недвижимости!