Сдам производственное помещение, 1 872 м²

ул Нехинская, д. 57

748 800 руб.

?

$ 1 086

€ 979

400 руб./м²


1872 м²

1/1 этажей

Код объекта

133034

Предложение доступно для субагентов, авторизуйтесь

Сдам Производственное помещение, 1 872 м²

Код объекта: 133034.
Тип объекта: Производственное помещение.
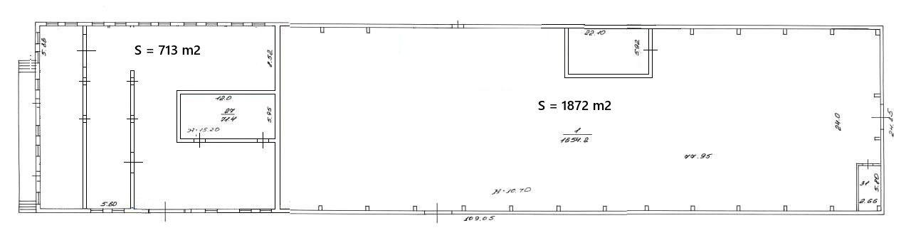
Площадь: 1872 м².
Этаж / Этажность: 1 / 1.

Описание и характеристики

АРЕНДА ОТ СОБСТВЕННИКА. БЕЗ КОМИССИИ.

Предлагается в аренду производственное помещение на ул. Нехинской д. 57с1, 1872 м² (24x78 м). Помещение можно сделать отапливаемым. Под любой вид деятельности, под склад, производство. Возможно увеличение площади до ~2572 м².

Тариф за электроэнергию 9 руб/кВт с учетом 5% НДС.

Характеристики и преимущества помещения:
- электричество до 500 кВт;
- кран-балка по всю длину цеха, г/п 10 тонн;
- высокие потолки до 10 м.;
- большая парковочная зона;
- крыша после кап. ремонта, утеплена;
- пол бетонные плиты;
- возможность подведение воды и водоотведения;
- высокие ворота с механическим приводом;
- большое количество естественного света;
- удобный подъезд для грузового транспорта;
- доступ 24/7, охраняемая территория.

Арендная ставка за неотапливаемое помещение 400 руб./м².
Арендная ставка за отапливаемое помещение 550 руб./м² (отопление входит в стоимость). Электричество оплачивается согласно приборам учета сверху. Звоните! Покажем в любое время.

«АГЕНТСТВО РЕГИОНАЛЬНОГО РАЗВИТИЯ»
Вся коммерческая недвижимость Великого Новгорода.

Перейти в карточку объекта в CRM: 133034.

АРР Великий Новгород

+7 921 730-92-01

или оставьте ваш номер, и я перезвоню в течение 30 минут

Отправляя заявку вы соглашаетесь на обработку персональных данных

748 800 руб.

?

$ 9 709

€ 8 226

400 руб./м²


1872 м²

1/1 этажей

Код объекта

133034

Предложение доступно для субагентов, авторизуйтесь

АРР Великий Новгород

+7 921 730-92-01

или оставьте ваш номер, и я перезвоню в течение 30 минут

Отправляя заявку вы соглашаетесь на обработку персональных данных

Похожие объявления

Посмотреть все похожие объявления
1/10
Код объекта: 379518.
Тип объекта: Производственное помещение.
Площадь: 3225 м².
Этаж / Этажность: 1 / 3.
1/8
Код объекта: 401937.
Тип объекта: Производственное помещение.
Площадь: 4500 м².
Этаж / Этажность: 1 / 1.
1/29
Код объекта: 415725.
Тип объекта: Производственное помещение.
Площадь: 1408 м².
Этаж / Этажность: 1 / 2.
1/22
Код объекта: 287820.
Тип объекта: Производственное помещение.
Площадь: 3168 м².
Этаж / Этажность: 2 / 2.
1/25
Код объекта: 207148.
Тип объекта: Производственное помещение.
Площадь: 1749 м².
Этаж / Этажность: 1 / 1.
1/14
Код объекта: 360089.
Тип объекта: Производственное помещение.
Площадь: 1800 м².
Этаж / Этажность: 1 / 1.
1/22
Код объекта: 400044.
Тип объекта: Производственное помещение.
Площадь: 2000 м².
Этаж / Этажность: 1 / 1.
1/29
Код объекта: 415725.
Тип объекта: Производственное помещение.
Площадь: 1408 м².
Этаж / Этажность: 1 / 2.
1/20
Код объекта: 401536.
Тип объекта: Производственное помещение.
Площадь: 1450 м².
Этаж / Этажность: 1 / 2.
1/5
Код объекта: 300866.
Тип объекта: Помещение свободного назначения.
Площадь: 45.8 м².
Этаж / Этажность: 2 / 4.
1/6
Код объекта: 300869.
Тип объекта: Помещение свободного назначения.
Площадь: 47.8 м².
Этаж / Этажность: 4 / 4.
1/11
Код объекта: 301888.
Тип объекта: Торговый центр.
Площадь: 220 м².
Этаж / Этажность: 2 / 2.
1/3
Код объекта: 367077.
Тип объекта: Офисное помещение.
Площадь: 27 м².
Этаж / Этажность: 3 / 4.
1/5
Код объекта: 345565.
Тип объекта: Торговое помещение.
Площадь: 100 м².
Этаж / Этажность: 1 / 1.

Не хочу искать, перезвоните мне!

Оставьте номер телефона, наш специалист свяжется с вами и поможет с подбором недвижимости!