Сдам производственный комплекс, 3 225 м²

ул Деповская, д. 1

800 000 руб.

?

$ 1 086

€ 979

248 руб./м²


3225 м²

1/3 этажей

Код объекта

129018

Предложение доступно для субагентов, авторизуйтесь

Сдам производственный комплекс, 3 225 м²

Код объекта: 129018.
Тип объекта: Производственное помещение.
Площадь: 3225 м².
Этаж / Этажность: 1 / 3.

Описание и характеристики

АРЕНДА ИМУЩЕСТВЕННОГО КОМПЛЕКСА

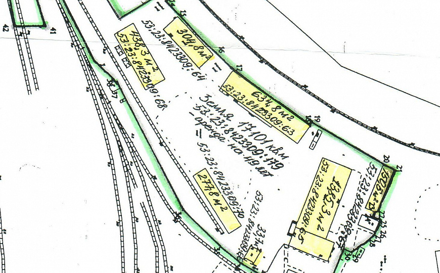
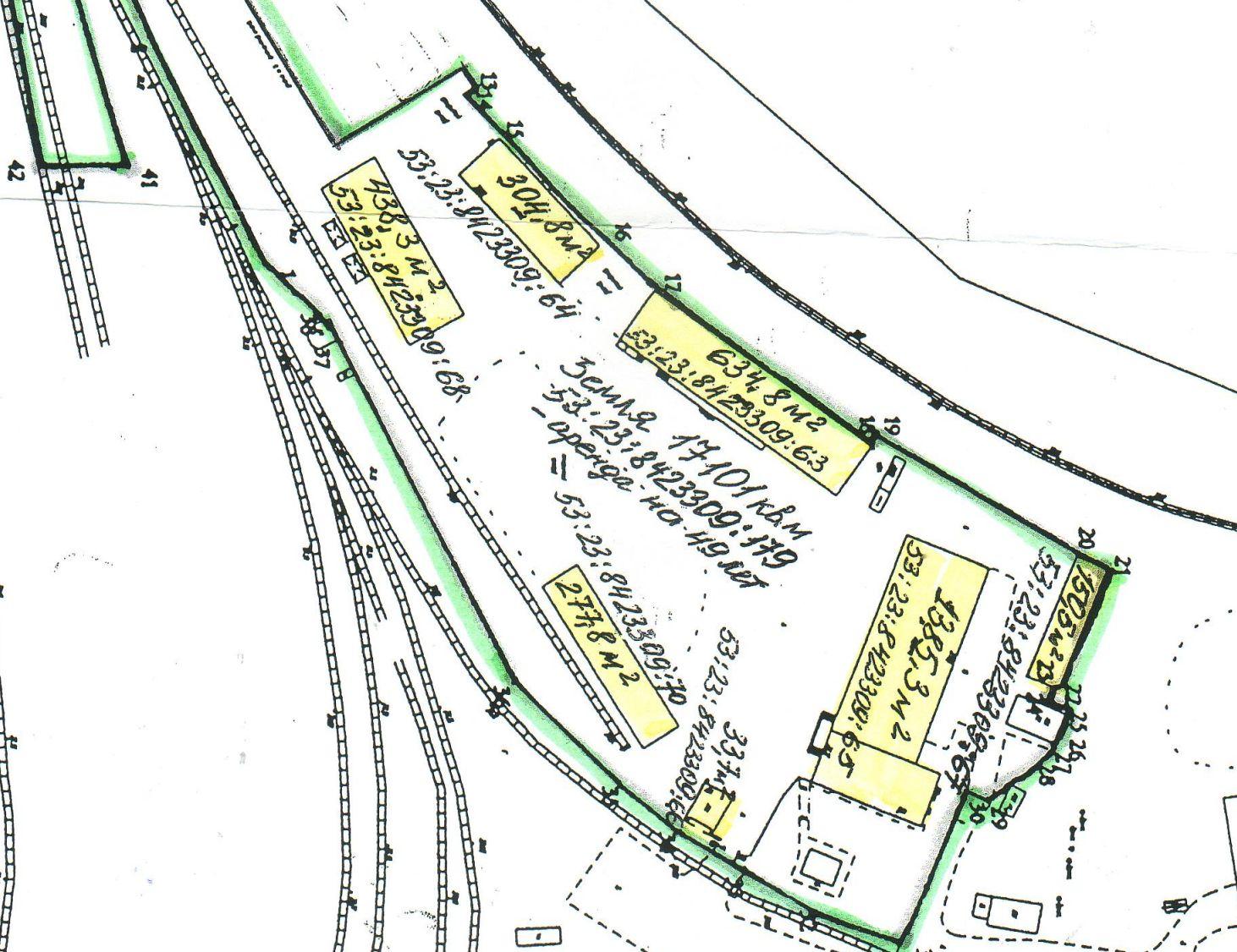
Предлагается в аренду имущественный комплекс с площадью строений 3 225 м² на земельном участке 2 Га. Производственная база в хорошем состоянии, расположена в Великом Новгороде со своим ж/д тупиком.

Состав комплекса:
- административное здание 1385 м²;
- здание гаража 277 м²;
- цех 304 м²;
- складское помещение 150 м²;
- склад с навесом и эстакадой 634 м²;
- здание бетонного узла 438 м²;
- проходная 33 м².

Характеристики и преимущества площадки:
- центральное отопление;
- 285 кВт;
- водоснабжение, водоотведение;
- комплекс в черте города;
- городские биологические очистные сооружения;
- территория огорожена;
- подкрановые пути;
- асфальтированная площадка около 6000 м²;

Категория земель: П1, зона обслуживания производства предприятий и складов опасности с СЗЗ 50 м.

Арендная ставка 800 000 рублей/месяц. Коммунальные услуги оплачивается сверху согласно приборам учета. Юридическое сопровождение, гарантируем чистоту сделки. Подробнее по телефону. Звоните!

«АГЕНТСТВО РЕГИОНАЛЬНОГО РАЗВИТИЯ»
Вся коммерческая недвижимость Великого Новгорода.

Перейти в карточку объекта в CRM: 129018.

АРР Великий Новгород

+7 921 730-92-01

или оставьте ваш номер, и я перезвоню в течение 30 минут

Отправляя заявку вы соглашаетесь на обработку персональных данных

800 000 руб.

?

$ 10 537

€ 8 983

248 руб./м²


3225 м²

1/3 этажей

Код объекта

129018

Предложение доступно для субагентов, авторизуйтесь

АРР Великий Новгород

+7 921 730-92-01

или оставьте ваш номер, и я перезвоню в течение 30 минут

Отправляя заявку вы соглашаетесь на обработку персональных данных

Похожие объявления

Посмотреть все похожие объявления
1/8
Код объекта: 401937.
Тип объекта: Производственное помещение.
Площадь: 4500 м².
Этаж / Этажность: 1 / 1.
1/22
Код объекта: 287820.
Тип объекта: Производственное помещение.
Площадь: 3168 м².
Этаж / Этажность: 2 / 2.
1/22
Код объекта: 287820.
Тип объекта: Производственное помещение.
Площадь: 3168 м².
Этаж / Этажность: 2 / 2.
1/18
Код объекта: 364512.
Тип объекта: Производственное помещение.
Площадь: 4186 м².
Этаж / Этажность: 1 / 1.
1/5
Код объекта: 300866.
Тип объекта: Помещение свободного назначения.
Площадь: 45.8 м².
Этаж / Этажность: 2 / 4.
1/6
Код объекта: 300869.
Тип объекта: Помещение свободного назначения.
Площадь: 47.8 м².
Этаж / Этажность: 4 / 4.
1/11
Код объекта: 301888.
Тип объекта: Торговый центр.
Площадь: 220 м².
Этаж / Этажность: 2 / 2.
1/3
Код объекта: 367077.
Тип объекта: Офисное помещение.
Площадь: 27 м².
Этаж / Этажность: 3 / 4.
1/17
Код объекта: 370996.
Тип объекта: Помещение свободного назначения.
Площадь: 98 м².
Этаж / Этажность: -1 / 9.

Не хочу искать, перезвоните мне!

Оставьте номер телефона, наш специалист свяжется с вами и поможет с подбором недвижимости!